Property Details
Basic Information
- Property Type: Single Family
- MLS Number: 5064759
- Lot Description: Level, Walking Trails, Near Shopping, Neighborhood, Near Hospital, Near School(s)
- Acreage: 0.4
- Foreclosure: No
- Latitude: 42.863757
- Longitude: -71.51946
Building
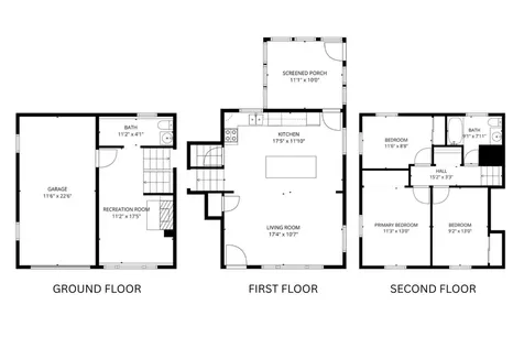
- Property Style: Split Level, Split Entry
- Square Feet: 1,240
- Year Built: 1966
- Zoning: 1F Residential
- Stories: 1
- Foundation: Concrete
- Garage Spaces: 1
- Building Construction: Vinyl Siding
Location
- Town: Merrimack
- State: NH
- Zip: 03054
Finance
- Tax Year: 2024
Interior Features
Bedrooms
- Bedrooms: 3
Bathrooms
- Bathrooms: 2
- Full Baths: 1
Basement
- Basement: Bulkhead, Concrete Floor, Interior Stairs, Unfinished
Other
- Interior Features: Ceiling Fan, Kitchen/Family, Kitchen/Living, Natural Light
Exterior Features
Features
- Parking Description: Direct Entry, Driveway, Garage, Off Street, Parking Spaces 5 - 10, Paved
- Driveway: Paved
- Road Frontage: 120
- Exterior Features: Natural Shade, Enclosed Porch, Shed
Utilities and Appliances
Utilities and Appliances
- Appliances Included: Refrigerator, Electric Stove
- Heat System: Hot Water







