Property Details
Basic Information
- Property Type: Single Family
- MLS Number: 5066586
- Lot Description: Agricultural, Country Setting, Horse/Animal Farm, Field/Pasture, Wooded
- Acreage: 17.23
- Foreclosure: No
- Virtual Tour: Virtual Tour
Building
- Property Style: Contemporary, Saltbox
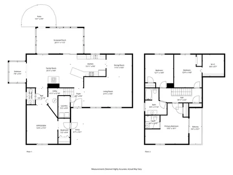
- Square Feet: 2,272
- Year Built: 1986
- Zoning: RA RESI/AGRI
- Stories: 2
- Foundation: Concrete Slab
- Garage Spaces: 2
- Building Construction: Wood Frame, Vinyl Siding
Location
- Town: Stratham
- State: NH
- Zip: 03885
Finance
- Tax Year: 2024
Interior Features
Bedrooms
- Bedrooms: 3
Bathrooms
- Bathrooms: 3
- Full Baths: 1
Basement
- Basement: Slab
Other
- Interior Features: 1 Fireplace, Hearth, Laundry Hook-ups, Living/Dining, Primary BR w/ BA, Natural Light, Natural Woodwork, Wood Stove Hook-up,1st Floor Laundry
Exterior Features
Features
- Parking Description: Driveway, Garage
- Driveway: Dirt, Paved
- Road Frontage: 50
- Exterior Features: Barn, Natural Shade, Outbuilding, Patio, Covered Porch, Screened Porch, Shed, Stable(s)
Utilities and Appliances
Utilities and Appliances
- Appliances Included: Dishwasher, Microwave, Electric Range, Refrigerator
- Heat System: Wood, Other, Wood Stove
Community
Schools
- Elementary School: Stratham Memorial School
- Junior High: Cooperative Middle School
- High School: Exeter High School



























































