Property Details
Basic Information
- Property Type: Single Family
- MLS Number: 5038837
- Lot Description: Beach Access, Mountain View, Water View, Waterfront, Mountain, Near Golf Course, Near Skiing, Near Snowmobile Trails
- Acreage: 0.3
- Foreclosure: No
- Virtual Tour: Virtual Tour
- Latitude: 43.868028
- Longitude: -71.602881
Building
- Property Style: Contemporary
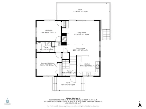
- Square Feet: 2,688
- Year Built: 1970
- Zoning: WATERV
- Stories: 1
- Foundation: Concrete
- Building Construction: Wood Frame, Wood Exterior
Location
- Town: Campton
- State: NH
- Zip: 03223
Finance
- Fee Includes: Recreation, Condo Association Fee
- Assoc Fees: $923
- Tax Year: 2023
Water
- Water Access: Owned
- Water Body Name: Chickenboro Brook Reservoir
- Water Body Type: Pond
- Water View: Yes
Interior Features
Bedrooms
- Bedrooms: 4
Bathrooms
- Bathrooms: 2
- Full Baths: 1
Basement
- Basement: Finished, Full, Interior Stairs, Walkout, Interior Access
Other
- Interior Features: Cathedral Ceiling, Ceiling Fan, Wood Fireplace, Furnished, Hot Tub, Natural Woodwork, Basement Laundry
Exterior Features
Features
- Driveway: Gravel
- Exterior Features: Deck, Hot Tub, Private Dock
Utilities and Appliances
Utilities and Appliances
- Appliances Included: Dishwasher, Dryer, Microwave, Refrigerator, Washer, Water Heater
- Heat System: Propane, Direct Vent, Electric
Community
Schools
- Elementary School: Campton Elementary
- High School: Plymouth Regional High School
Area
- Subdivision: Waterville Estates































































